Пиролизный котел: инструкция по самостоятельной сборке в 5 простых шагов
Владельцам частных домов приходится искать альтернативу отоплению, если магистрального газа к объекту не подведено. Использовать электричество накладно, для дров и угля может не оказаться места хранения. Выход есть – пиролизные котлы длительного горения, работающие на брикетах из отходов древесины, габаритном мусоре или кругляке, плотно укладываемом в топку. В сравнении с печью на дровах или угле, расход топлива снижается в разы. О преимуществах и недостатках, о возможности сделать котлоагрегат собственными руками используя чертежи, мы и поговорим.
Пиролиз – как процесс длительного горения
В двух словах, пиролиз – это медленное горение топлива с выходом продуктов, снова использующихся для генерации тепла. Выделенные атомы не смешиваются друг с другом, представляют собой готовую для использования горючую субстанцию. Суть сгорания заключается в минимальной подаче кислорода для поддержания тления брикетов или дров, но при этом еще и в большой выработке тепловой энергии. Экономия – главное достоинство агрегата.
Преимущества пиролизного котла
Также пиролизный котел обладает следующими преимуществами:
- Высокий КПД – коэффициент полезного действия. От 85% — это прекрасный показатель, свидетельствующий о том, что топливная энергия преобразуется в тепловую практически без остатка. Для сравнения – газовый котел генерирует 65% энергии.
- Котел или пиролизная печь – экономичные агрегаты. В пересчете на топливо и затраченные средства, они стоят на втором месте после газового генератора. И, конечно, не сравнимы с электрическими котлами.
- Агрегаты перерабатывают топливо в два этапа – сжигание древесины и использование выделенного газа. Предусмотренная емкость для накопления горючего газа позволяет устроить второй контур отопления с генерацией горячей воды на собственные нужды.
- Котёл длительного горения своими руками – обычное дело, так как конструкция проста и требуется обладать лишь навыками сварного дела. Чертежи и схемы найдутся на любом сетевом портале, равно, как и отзывы о самодельной конструкции.
- На твёрдотопливный котёл длительного горения своими руками собранный, не требуется разрешения, как на газовые и электрические котлы. Но от рекомендаций мастеров-установщиков отказываться не стоит – это все-таки агрегаты повышенного риска, но сборка и монтаж на определенное место остаются прерогативой собственника, не требующей от него материальных вложений в исполнении буквы закона.
- Время полного сжигания одной порции топлива достигает нескольких суток. Например,котел длительного горения до 7 суток – обычный случай. Это освобождает владельца от постоянного контроля над агрегатом, а собственные автоматические настройки позволят оставить дом с работающей печью.
Как недостаток, отмечают невозможность работы котла на сыром топливе. К хранению запасов важно относиться бережно и не допускать перенасыщения влагой брикетов более чем на 40% от общего веса. Проблему сырости решает встроенный вентилятор, однако, он делает агрегат энергозависимым или придется приобретать источник бесперебойного питания. Пиролизный котёл — это максимальная теплоотдача.
Расчеты, схемы, чертежи, устройство: принцип работы на естественной тяге с форсункой и горелкой без автоматики
Итак, если есть желание собрать твёрдотопливный котёл своими руками для дачных нужд в качестве эксперимента, то дерзайте. Для начала важно рассмотреть приемлемые схемы для будущей конструкции. Подробно:
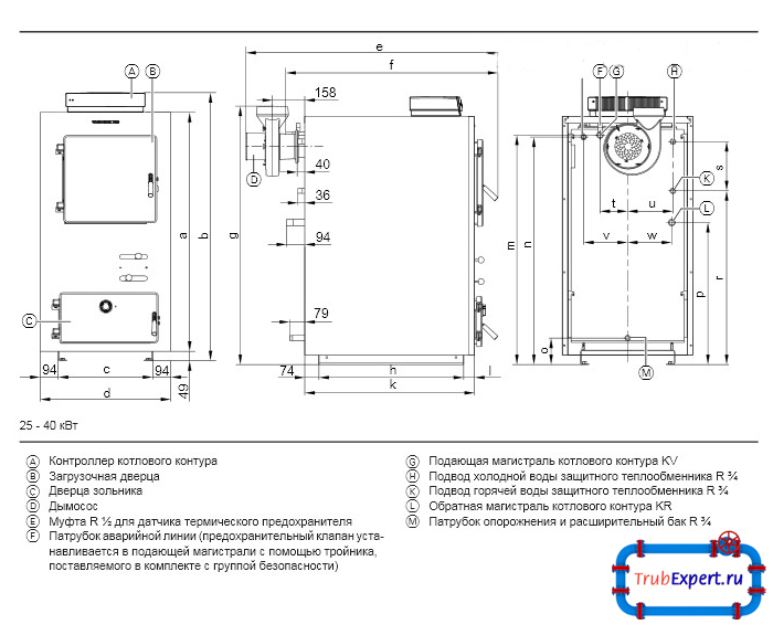
- Стандартный классический пиролизный котел своими руками состоит из корпуса, поделенного на две части – камеры для сгорания топлива и выделяемого газа.
- Под камерой для твердого топлива, расположен теплообменник для носителя – он нагревается и под действием температуры циркулирует по трубной разводке отопления. Если дача в два этажа, то котёл отопления своими руками потребует циркуляционного насоса, так как разогнать массу воды вверх самотеком не удастся.
- Агрегат оснащен воздушными входными каналами, откуда посредством вентилятора для котла поступает масса кислорода. И выходными газовыми, которые после отдачи собственной температуры попадают в боров, ведущий в дымоход.
- Котлоагрегат оснащается двумя дверками – верхняя для загрузки топлива, нижняя для очистки зольника.
Простой самодельный котел длительного горения отличается от заводских установок отсутствием автоматических настроек – подача воздуха регулируется вручную дверцей зольника или параметрами вентилятора. Тем не менее отсутствие некоторых технологических приборов не повод сомневаться в производительности кустарной установки – даже прогрессивные заводские модели имеют недостатки и достоинства.
Сравнительные характеристики заводских и самодельных простейших агрегатов на отработке
Таблица для сравнения –котлы Stropuva икустарный агрегат – плюсы и минусы:
| Заводская модель | Самодельный котел |
| Эстетичный внешний вид | — |
| Высокая мощность – от 10 кВт | + |
| Техническая оснащенность, позволяющая автоматизировать процесс | — |
| Высокий КПД – от 87% | +( до 90%) |
| Рекомендована для использования твердого каменного топлива.Температура горения угля выше, чем у древесных отходов. | Кустарные установки из железа приемлют дрова и брикеты, для угля требуется чугунный корпус или легированная сталь |
| Объем водяного теплообменника – до 35 л | + (до 50 л) |
| Высокая цена – от 80 тыс. рублей | Твердотопливный котел сверхдлительного горения своими руками обойдется до 5 тыс. рублей |
| Внушительный вес – от 200 кг | Легкий, способный для устойчивого положения на любой поверхности. |
| Способность отапливать помещения площадью до 400 м² | Максимум – до 100 м² |
| Требует профессиональной установки и настройки | Монтаж производится самостоятельно |
Итак, твёрдотопливные котлы своими руками не уступают «мажорам», произведенным на Западе. Из показаний таблицы, выгоднее сделать его самостоятельно еще и потому, что обслуживание и ремонт, которые потребуют заводские установки, нельзя совершать не имея на то знаний и аккредитации. Иначе гарантия на изделие будет потеряна. Сделать пиролизный котёл своими руками сможет каждый мужчина.
Как изготовить пиролизный котел своими руками из газового баллона: пошаговая инструкция
Для начала требуются чертежи пиролизных самодельных котлов. Их находят в соответствующей литературе или на сайтах домашних умельцев. Важно рассматривать агрегаты с подробным видео и отзывами от реальных владельцев, в процессе эксплуатации совершенствующих собственное изобретение. Из материалов и инструментов потребуются:
- Стальные листы и профильные трубы толщиной от 3 мм. Если меньше, то со временем температура горения дров деформирует агрегат и приведет его в негодность в момент работы, что чревато риском прогорания стенок и возникновением пожароопасной ситуации.
- Сварочный аппарат постоянного тока и соответствующие электроды.
- Дрель с алмазными сверлами и шлифовальная машина с аналогичными дисками.
- Комплектующие котла: дверцы, короб зольника, дутьевой вентилятор.
В зависимости от конструкции и чертежей, модели агрегатов отличаются. Если создается пиролизная печь своими руками – прибор отопления лучше держит тепло, в отличие от железа, то к описанному набору добавляется шамотный кирпич и асбестовые или паранитовые листы.
Алгоритм или пошаговая инструкция состоит из следующих пунктов:
- По намеченным размерам, приготовленные листы стали и профильные трубы разрезаются. Края заготовок тщательно проходят алмазным шлифовальным кругом – сваривать будет легче и риск пораниться снизится.
- Сваривается корпус – на горизонтальную поверхность укладывается заготовка торца, а к ней прихватками крепят стенки, дно и крышку.
- Внутри котла располагают топку с колосниковой решеткой. В середине наваривается форсунка для отвода отходящих олефинов – газов с высокой температурой.
- Выполняется сборка системы охлаждения. Она состоит из нескольких профильных труб, выходящих за пределы котла.
Конструкция отделяется от топки перегородкой, а в непосредственной близости от пучка располагают патрубки подачи-обратки отопления – поместить их в камеру горения нельзя, так как вода просто вскипит.
- Далее, собирается система воздухосборника – корпуса с отверстиями и патрубками, соединенными с пучком труб для отвода газов и отверстием для приточной вентиляции. В этой систем будет накапливаться газовоздушная смесь пригодная для горения.
Остается приварить на котёл отопления своими руками переднюю стенку, оснащенную поддувальной и загрузочной дверцей, установить агрегат на соответствующую станину и провести испытания.
Устанавливают котел своими руками на бетонную плоскость, залитую по уровню и накрытую асбестовыми листами. Если возможности для заливки нет – вес бетона влияет на фундамент, то полы разбирают, выкладывают кирпичами, устилают паранитом и накрывают листовым железом. Так, безопасность импровизированной котельной будет соблюдена. Пиролизный котёл сделать своими руками — это просто, только надо немного постараться.


